00件
最近見た物件
00件
検討リスト
有限会社本田商会TOP > (店舗事務所)地域から探す > 大阪市中央区 > 都住創内淡路町 > 物件詳細
オーナーチェンジ物件 ■区分所有店舗・事務所 ■2024年リノベーション済み ■給湯はセントラル給湯










(※元利均等方式 金利5.00%まで ※返済年数5~50年まで入力できます)
(※ボーナスは年2回で計算しています。1000万円まで入力できます)
(※物件購入時、その他諸費用が発生する場合がございます)




| 所在地 | 大阪府大阪市中央区内淡路町2丁目1‐7 | ||
|---|---|---|---|
| 交通 | |||
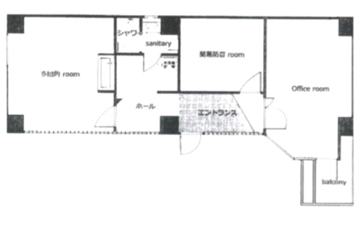
| 間取り/詳細 | - | 建物面積(坪数) | -(-) |
| 価格 | 4,500万円 | 管理費 | 13,160円 |
| 利回り | 表面6.60%/- | ||
| 修繕積立金 | 12,110円 | 駐車場/月額料金 | -/- |
| 土地権利 | 所有権 | 国土法届出要否 | 不要 |
| 土地面積(坪数) | -(-) | 私道負担面積/セットバック | -/- |
| 用途地域 | 商業 | 地目/地勢 | -/- |
| 種別/構造 | 店舗事務所/鉄骨鉄筋コンクリート | 向き | - |
| 築年月(築年数) | 1986年 1月 (築39年) | ||
| 所在階/階建 | 2階/10階建 地下2階 | 棟総戸数/販売戸数 | -/- |
| 管理組合有無 | 無 | 管理形態 | 自主管理 |
| 管理員の勤務形態 | 日勤 | 管理会社 | 株式会社日昌ライフサポート |
| 取引態様 | 一般媒介 | 現況/引渡し | 賃貸中/相談 |
| 物件番号 | 98330185 | 取引条件の有効期限 | 2025年11月28日 |
| 設備条件 |
|
||
| 備考 | 月額賃料250,000円 表面利回り約6.6% | ||
| 取扱会社 |
|
||
| QRコード |
このQRコードを読み取ることで、スマホでも物件情報を確認できます。 |
||
※地図上に表示される物件の位置は付近住所に所在することを表すものであり、実際の物件所在地とは異なる場合がございます。
都住創内淡路町に関するこだわり条件から探す
大阪市中央区の町名から探す
大阪市中央区にある駅から探す
都住創内淡路町周辺の駅から探す